امکانات مکانیکال سیل Iseal مدل ISMG9
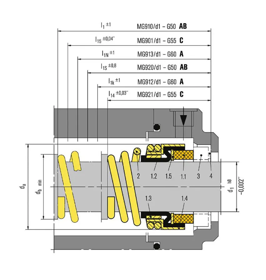
- مکانیکال سیل Iseal یک اصل مدولار است که شامل یک واحد دم برای هر قطر شفت و یک فنر به نسبت بلند (فنر مخروطی یا استوانهای) برای جبران طول جداگانه با توجه به l1K، l1N و سایر طولهای نصب.
- مکانیکال سیل ISMG9 همچنین می تواند به عنوان یک سیل چندگانه به صورت پشت سر هم یا به صورت پشت سر هم استفاده شود. پیشنهادات نصب را می توان در صورت درخواست ارائه کرد.
- کل سری ISMG9 در اندازه های متریک و اینچی موجود است.
- برای شفت های ساده
- سیل تک و دوتایی
- دم های الاستومری در حال چرخش
- متعادل
- مستقل از جهت چرخش
- بدون پیچش روی دم و فنر
- فنر مخروطی یا استوانه ای شکل
- ابعاد نشیمنگاه ویژه موجود است
مشخصات فنی
مشخصات فنی مکانیکال سیل Iseal مدل ISMG9
- قطر شفت: d1 = 10 … ۱۰۰ میلی متر (۰٫۳۷۵ اینچ … ۴ اینچ)
- فشار: p1 = 12 bar (174 PSI)، جارو برقی تا ۰٫۵ بار (۷٫۲۵ PSI)، تا ۱ بار (۱۴٫۵ PSI) با قفل صندلی
- درجه حرارت: t = -20 درجه سانتیگراد … +۱۴۰ درجه سانتیگراد (-۴ درجه فارنهایت … +۲۸۴ درجه فارنهایت)
- سرعت لغزش: vg = 10 متر بر ثانیه (۳۳ فوت بر ثانیه)
- حرکت محوری: ± ۰٫۵ میلی متر
متریال
جنس قطعات مکانیکال سیل Iseal مدل ISMG9
- جنس بدنه: Carbon graphite antimony impregnated (A), Carbon graphite resin impregnated (B), Silicon carbide (Q1)
- جنس نشیمنگاه : Silicon carbide (Q1, Q2), Aluminium oxide (V)
- الاستومر: NBR (P), EPDM (E), FKM (V), HNBR (X4)
- جنس قطعات فلزی : CrNiMo steel (G)
کاربردها
کاربردهای مکانیکال سیل Iseal مدل ISMG9
- فناوری آب و فاضلاب
- صنعت خمیر و کاغذ
- صنایع شیمیایی
- مایعات خنک کننده
- رسانه با محتوای جامد کم
- روغن های تحت فشار برای سوخت های بیو دیزل
- پمپ های گردشی
- پمپ های شناور
- پمپ های چند مرحله ای (سمت غیر محرک)
- پمپ آب و فاضلاب
- کاربردهای روغن
استانداردها
استانداردهای مکانیکال سیل Iseal مدل ISMG9
- EN 12756
- FDA
- WRAS
- KTW
- ACS
- W270
- NSF
مزایا
مزایای مکانیکال سیل Iseal مدل ISMG9
- به دلیل کوچکترین قطر سیل بیرونی، در هر فضای نصبی مناسب است
- تأییدیه های مواد مهم موجود است
- طول نصب فردی را می توان به دست آورد
- انعطاف پذیری بالا به دلیل انتخاب گسترده مواد
- کاربرد جهانی (استانداردسازی شده است)
دانلود کاتالوگ مکانیکال سیل Iseal مدل ISMG9
نقشه فنی
نقشه فنی مکانیکال سیل Iseal مدل ISMG9

جدول اجزاء
جدول ابعاد




