ویژگی های مکانیکال سیل H-Brinker مدل Hbsmix461
- برای درایوهای ورودی بالا
- برای صنایع شیشه ای acc. به DIN احترام. غیر DIN
- کارکرد خشک
- سیل تحت فشار نیتروژن
- بالانس
- سوراخ های متعدد در حال چرخش
- مستقل از جهت چرخش
- قطعات آماده به کار و آزمایش شده توسط کارخانه
- با یا بدون بلبرینگ در دسترس است
- مناسب برای برگشت فشار به عنوان مثال در صورت خرابی فشار اصلی
- بدون آلودگی محصول توسط مایع
- اتصال بدون اصطکاک به شافت
- ساخت با استانداردهای DIN 28138 یا همانطور که لازم است (Hbsmix461)
- گواهینامه ATEX در صورت درخواست موجود است
- سیل مکانیکی را می توان از روی فلنج شیشه ای به عنوان یک کارتریج کامل برداشته کرد. فلنج پایه شیشه ای حساس .
کاربرد های
کاربردهای مکانیکال سیل H-Brinker مدل Hbsmix461
- فن آوری پالایش
- صنعت پتروشیمی
- صنایع شیمیایی
- صنعت داروسازی
- صنایع غذایی و آشامیدنی
- همزن
- میکسر
- راکتورها
مشخصات فنی
رنج کاری مکانیکال سیل H-Brinker مدل Hbsmix461
- نصب برو شفت های با قطر ۴۰ تا ۲۲۰ میلیمتر
- تحمل فشار ۶ بار
- تحمل حرارت ۲۰- تا ۲۰۰+ درجه سانتیگراد
- سرعت جابجایی ۰ تا ۲ میلی ثانیه
جنس مواد
جنس مواد مکانیکال سیل H-Brinker مدل Hbsmix461
- جنس سطح سیل: Carbon graphite, FDA conform
- جنس قسمت نشیمنگاه : Silicon carbide, FDA conform
- قسمت سیل ثانویه بنا به درخواست کاربر قابل طراحی و ساخت می باشد.
استاندارد
گواهینامه های مکانیکال سیل H-Brinker مدل Hbsmix461
- FDA
- ATEX
- DIN 28138 (mechanical seals for agitator shafts)
- DIN 28136 T3 (for glass-lined vessels)
- DIN 28137 T2 (flange connection for glass-lined vessels)
- DIN 28159 (shaft end for glass-lined vessels)
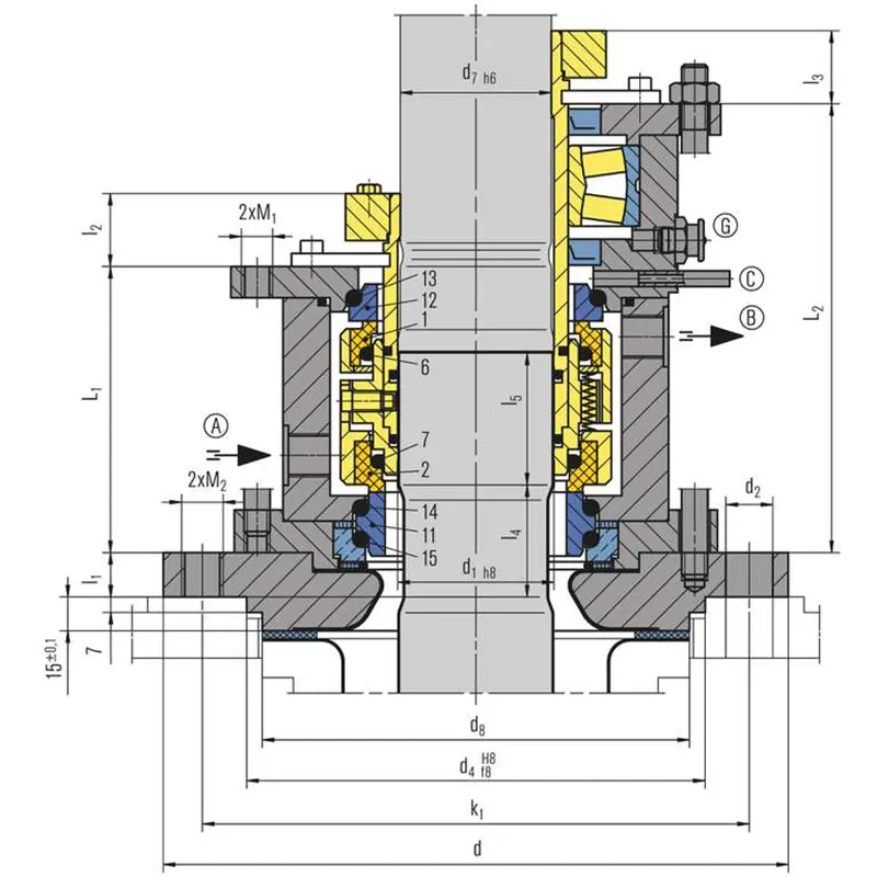
جدول اجزاء
جدول اجزاء مکانیکال سیل H-Brinker مدل Hbsmix461
| Item | Description |
| ۱ | Seal face, atmosphere side |
| ۲ | Seal face, product side |
| ۶, ۱۴, ۱۵ | O-Ring |
| ۱۱ | Seat, product side |
| ۱۲ | Seat, atmosphere side |
| ۳۴ | Lip seal |
نقشه اجزاء
ابعاد و اندازه
















