ویژگی های آب بند مکانیکی SeccoMix 481
- جهت شفت های ساده
- آب بندی تک
- نامتعادل
- فنر سوپر چرخش یا چرخش فنر متعدد
- مستقل از جهت چرخش
- متغیر با مهرهای ثانویه PTFE برای مقاومت در برابر مواد شیمیایی بالا (M78N)
کاربرد های
کاربردهای آب بند مکانیکی SeccoMix 481
- فن آوری پالایش
- صنعت پتروشیمی
- صنایع شیمیایی
- صنعت داروسازی
- صنایع غذایی و آشامیدنی
- همزن
- میکسر
- راکتورها
مشخصات فنی
مشخصات فنی آب بند مکانیکی SeccoMix 481
- قطر شفت: d1 = 40 … ۲۲۰ mm (1.57 اینچ … ۸٫۶۶ اینچ)
- فشار: p1 = خلاء … ۶ بار (۸۷ PSI)
- دما: t1 = -20 درجه سانتی گراد … +۲۰۰ (۲۵۰*) درجه سانتی گراد (-۴ درجه فارنهایت … +۳۹۲ (۴۸۲*) درجه فارنهایت)
- سرعت لغزش: vg = 0 … ۲ m/s (0 … ۶ ft/s) برای کاربردهای فراتر از این محدوده، لطفاً پرس و جو کنید.
- دارای فلنج خنک کننده
جنس مواد
جنس مواد آب بند مکانیکی SeccoMix 481
- جنس ظاهری: Carbon graphite, FDA conform
- قسمت زیرین: Silicon carbide, FDA conform
- قسمت دوم سیل بنا به درخواست کاربر طراحی و تولید می شود.
استاندارد
گواهینامه های SeccoMix 481
- FDA
- ATEX
- DIN 28138 (mechanical seals for agitator shafts)
- DIN 28136 T2 (steel vessels)
- DIN 28141 (flange connection for steel vessels)
- DIN 28154 (shaft end for steel vessels)
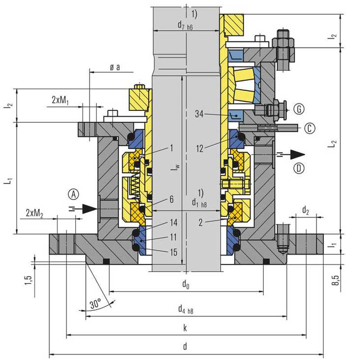
جدول اجزاء
جدول اجزاء آب بند مکانیکی SeccoMix 481
| Item | Description |
| ۱ | Seal face, atmosphere side |
| ۲ | Seal face, product side |
| ۶, ۱۴, ۱۵ | O-Ring |
| ۱۱ | Seat, product side |
| ۱۲ | Seat, atmosphere side |
| ۳۴ | Lip seal |
نقشه اجزاء
ابعاد و اندازه

















