ویژگی های آب بند مکانیکی HS-D
- برای درایوهای ورودی بالا
- به صورت سیل دوبل
- بالانس نمی باشد
- مستقل از جهت چرخش
- دارای سوراخ های متعدد در حال چرخش
- روغن کاری شده
- دارای کارتریج
- قطعات آماده به کار و آزمایش شده توسط کارخانه
- با یا بدون بلبرینگ در دسترس است
- شیارهای هیدرودینامیکی ثبت شده
- برای محدوده فشار متوسط طراحی شده است
- ابعاد اتصال بنا به نیاز مشتری
- بسته شدن خودکار توسط خود محصول
- در صورت درخواست گواهینامه ATEX
کاربرد های HS-D
کاربردهای آب بند مکانیکی HS-D
- فن آوری پالایش
- صنعت پتروشیمی
- صنایع شیمیایی
- صنعت داروسازی
- راکتورها
- همزن
- تجهیزات مخصوص چرخش
مشخصات فنی HS-D
رنج کاری آب بند مکانیکی HS-D
- نصب بر روی شفت های با قطر ۲۰ تا ۵۰۰ میلیمتر
- تحمل فشار تا ۳۰ بار
- تحمل حرارت ۴۰- تا ۲۰۰+ درجه سانتیگراد
- سرعت جابجایی ۰ تا ۵ میلی ثانیه
جنس مواد HS-D
جنس مواد آب بند مکانیکی HS-D
- جنس ظاهری : Carbon graphite or Silicon carbide, FDA conform
- قسمت زیرین: Silicon carbide, FDA conform
- قسمت دوم سیل بنا به درخواست کاربر طراحی و تولید می شود.
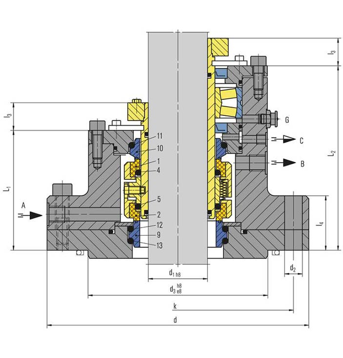
جدول اجزاء HS-D
جدول اجزاء آب بند مکانیکی HS-D
| Item no. | Description |
| ۱ | Seal face, atmosphere side |
| ۲ | Seal face, product side |
| ۴, ۵, ۱۱, ۱۲, ۱۳ | O-Ring |
| ۹ | Seat, product side |
| ۱۰ | Seat, atmosphere side |
نقشه اجزاء
ابعاد اندازه





