ویژگی های آب بند مکانیکی M481
- برای شفت هایی که از بالا بسته می شوند
- به صورت سیل دوبل
- بالانس نمی باشد
- مستقل از جهت چرخش
- استفاده از سوراخ های تنظیم در اطراف
- روغن کاری شده
- دارای کارتریج
- قطعات آماده به کار و آزمایش شده توسط کارخانه
- موجود با یا بدون بلبرینگ
- مناسب برای استاندارد سازی
- آب بند را می توان در فشار و سرعت چرخش بالاتر از آنچه توسط DIN مشخص شده است اعمال کرد
- بسته شدن خود کار توسط خود محصول
- در صورت درخواست گواهینامه ATEX
کاربرد های M481
کاربردهای آب بند مکانیکی M481
- فن آوری پالایش
- صنعت پتروشیمی
- صنایع شیمیایی
- صنعت داروسازی
- صنایع غذایی و آشامیدنی
- همزن
- راکتورها
مشخصات فنی M481
رنج کاری آب بند مکانیکی M481
- نصب بر روی شفت های با قطر ۴۰ تا ۲۲۰ میلیمتر
- تحمل فشار تا ۱۶ بار
- تحمل فشار در حالت ۳ فاز تا ۱۸ بار
- تحمل حرارت از ۴۰- تا ۲۰۰+ درجه سانتیگراد
- سرعت جابجایی تا ۵ میلی ثانیه
جنس مواد M481
جنس مواد آب بند مکانیکی M481
- ظاهر سیل: Carbon graphite or Silicon carbide, FDA conform
- قسمت زیرین: Silicon carbide, FDA conform
- قسمت دوم سیل بنا به درخواست کاربر طراحی و تولید می شود.
گواهینامه
استاندارد های آب بند مکلنیکی M481
- FDA
- ATEX
- DIN 28138 (mechanical seals for agitator shafts)
- DIN 28136 T2 (for steel vessels)
- DIN 28141 (flange connection for steel vessels)
- DIN 28154 (shaft end for steel vessels)
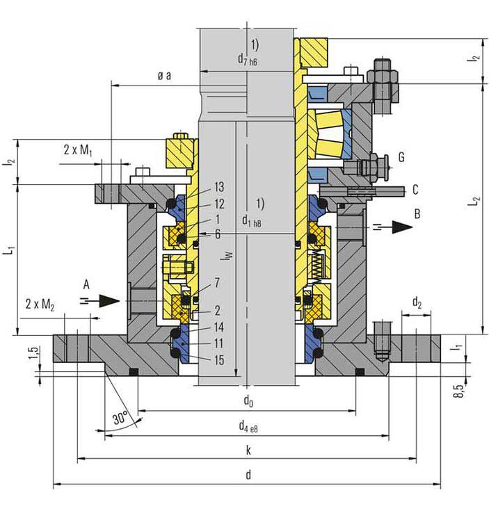
جدول اجزاء M481
جدول اجزاء آب بند مکانیکی M481
| Item | Description |
| ۱ | Seal face, atmosphere side |
| ۲ | Seal face, product side |
| ۶, ۷, ۱۳, ۱۴, ۱۵ | O-Ring |
| ۱۱ | Seat, product side |
| ۱۲ | Seat, atmosphere side |
نقشه اجزاء
ابعاد و اندازه





